Trilocale in vendita

Vittuone, Via Eugenio Villoresi
€ 250.000
Prezzo aggiornato
3 locali 3 locali
90 Mq 90 Mq
1 bagno 1 bagno

Trilocale in vendita

Vittuone, Via Eugenio Villoresi

Descrizione annuncio


Luminosità, comfort e modernità nel cuore del paese!

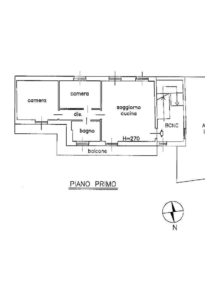
Proponiamo in vendita un appartamento di tre locali con cucina a vista situato al primo piano di una palazzina di sole quattro unità abitative realizzata nel 2021 con basse spese condominialie e dotata di predisposizione del fotovoltaico per le parti comuni.

L'ingresso all' appartamento avviene nella zona living dotata di doppia esposizione e di uscita sul comodo balcone .

Dal disimpegno si accede alla zona notte composta da due camere da letto e dal servizio finestrato.

La camera matrimoniale di ottime metrature è dotata di portafinestra con accesso al balcone.

Gli spazi sono ulteriormente valorizzati dall'aria condizionata e dai serramenti in doppio vetro, che garantiscono un ottimo isolamento termico e acustico mentre il riscaldamento a pavimento assicura un comfort ideale per ogni stagione.

Annessa alla soluzione è presente una comoda cantina posta al piano semi-interrato.

Il box di circa 18 mq è compreso nel prezzo.

La consegna è concordabile con il proprietario.

Mostra tutto

Nelle vicinanze

Trasporto pubblico Trasporto pubblico
Vittuone-Arluno
Vittuone-Arluno
1,1 Km
Via Milano (Vittuone)
Via Milano (Vittuone)
60 m
Via Magenta (Sedriano)
Via Magenta (Sedriano)
730 m
Ricariche auto elettriche Ricariche auto elettriche
Eneldrive McDonald's Sedriano
890 m
Arluno Fanin | EnelX
2,1 Km
Rogorotto Verga | EnelX
2,6 Km
Arluno Filanda | EnelX
2,6 Km
Arluno Matteotti | EnelX
2,8 Km
Scuole Scuole
Liceo Scientifico-Teconologico - ITIS E. Alessandrini
600 m
Scuole
610 m
Scuola Elementare
800 m
Scuola Secondaria di Primo Grado di Santo Stefano Ticino
2,8 Km
Scuola elementare istituto Luigi Perlasca
2,8 Km
Farmacia Farmacia
Farmacia Comunale di Vittuone
1,1 Km
Iper Farma
1,1 Km
Comunale
1,1 Km
Farmacia Moderna
2,6 Km
Farmacia della fontana
2,7 Km
Supermercati Supermercati
Superdì
560 m
Iper Vittuone
1,1 Km
MD Discount
1,1 Km
Bennet
1,5 Km
Famila
2,3 Km
Negozi Negozi
Stile Libero
860 m
DEN
970 m
Treesse
990 m
Tally Weijl
990 m
Golden Point
990 m
Bar Bar
Al Palo
480 m
Bar
770 m
Ass. Tiro a Volo "Arlunese" - Stand dei Pini
2,1 Km
Bar Milano
2,5 Km
Il Pacchero
2,6 Km
Ristoranti Ristoranti
Trattoria Mediterranea
640 m
Ristorante - Pizzeria "All'Angolo"
730 m
Ristoranti
890 m
La Tagliata
960 m
Pizzeria Dina
960 m
Mostra tutto

Caratteristiche

Rif.:
61110983
Piano:
1 di 2 (Piano medio)
Box:
1
Balconi:
2
Camere da letto:
2
Arredamento:
Assente
Mostra tutto
Prezzo Prezzo
€ 250.000
Rata mutuo Rata mutuo
€ 1.180 / mese
Spese annue Spese annue
€ 100
Proponi il tuo prezzoProponi il tuo prezzo

Classe Energetica

A2
A2
A2
A2
A2
A2
A2
A2
A2
EP globale non rinnovabile:
52.64 kW h/m² anno
EP globale rinnovabile:
0.00 kW h/m² anno
EP invernale del fabbricato:
EP estiva del fabbricato:
Anno di costruzione:
2021
Riscaldamento:
Autonomo
Tipo impianto:
A pavimento
Tipo alimentazione:
Metano

Prezzo ridotto di €1 (4%%)

Ti interessa visionare l'immobile?

Fissa un appuntamento  Fissa un appuntamento

Richiedi informazioni

Clicca su Leggi per aprire l'informativa
* Questi campi sono obbligatori

Calcola il tuo mutuo

Semplice e senza impegno
Anticipo

( % )
Mutuo

( % )

pochi semplici passi

inserisci i tuoi dati
Questionario completato
Grazie per aver richiesto un appuntamento senza impegno con un nostro Consulente del Credito e Assicurativo.

Hai inserito correttamente tutti i dati necessari e a breve riceverai una e-mail con un link da convalidare per inviare i tuoi dati.
Affiliato
Studio Sedriano Sas
Via Villoresi, 18 20010 Vittuone (MI)

Il nostro staff


  • Raffaele Mordocco
    Affiliato

  • Simona Zanzottera
    Coordinatrice

  • Beatrice Spina
    Collaboratrice

  • Emanuele Verde
    Collaboratore
Via Villoresi, 18 20010 Vittuone (MI)
Zona: Vittuone
Mostra su mappa
Orari: Lunedi-venerdi 9.00-12.30/14.30-19.30 : Sabato 9.00-12.30/14.30-18.00 Domenica su appuntamento
Affiliato
Studio Sedriano Sas
Via Villoresi, 18 20010 Vittuone (MI)

2025 Tecnocasa Franchising S.p.A. - P. IVA 08365160152 - Via Monte Bianco 60/A 20089 Rozzano (MI). Ogni agenzia ha un proprio titolare ed è autonoma. Privacy policy | Policy utilizzo | Cookie policy